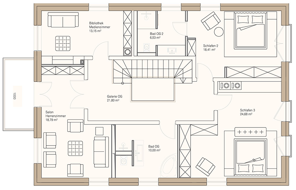
Die Aufteilung der Räumlichkeiten ist modern, kommunikativ und geradlinig mit klarer Gliederung der Funktions- und Wohnräume hier am Beispiel eines 3-stöckigen Townhouses.
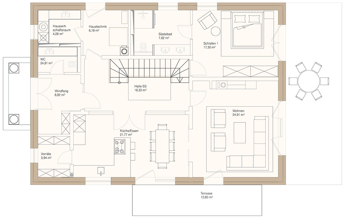
Über die geräumige Halle gelangt man in die Küche mit Einbauküche und angrenzendem Essbereich, welcher durch eine große Tür mit dem Wohnzimmer verbunden ist. Weiterhin befinden sich in diesem Teil des Hauses der Vorratsraum sowie ein Hauswirtschaftsraum, der sowohl durch die Halle als auch von draußen betreten werden kann. Das Schlafzimmer verfügt über ein eigenes Bad, ebenfalls befindet sich im Erdgeschoss ein Gäste-WC.



